Cranley Escarpment Park Toowoomba
Cranley Escarpment Park is a large remnant bushland reserve on the outskirting north-western ridges of Toowoomba City. The park will become a key recreation and open space for the surrounding community and will provide visitors with a range of passive activities within its rural and bushland setting. Landscape improvement works will include shelter structures at the parks major access points, bushwalking trails, resting and viewing areas, feature planting, drainage swale and detention basin treatments, feature planting areas and bushland revegetation.
Imbil Recreation Park
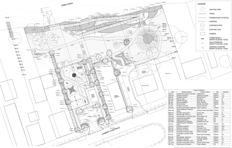
Establishment of new all ages activity playground and recreation area adjacent to the Yabba Creek in the township of Imbil. Detailed design documentation included play structures, soft fall areas, toilet facilities, bbq shelters, an amphitheatre over looking the creek, canoe pontoon facility, fencing, furniture, ramps, paths, walls and car parking areas. Detailed planting design was also provided with schedules for all garden areas.
Newtown Park Adventure Playground Toowoomba
Newtown Park is the second largest park in Toowoomba. Toowoomba Regional Council commissioned documentation of the proposed upgrade of the playground and adjacent area based on existing concept drawings. Documentation included specification for play structures and soft fall areas, shelters, fencing, furniture, paths, turfed areas and irrigation layout. Planting design and schedules for all proposed garden areas was also provided. Construction work was completed in 2011.
The key outcomes for the project were to improve the aesthetic and function of these key spaces which would in turn improve public perception and business activity in the area. Strategies to achieve this included design and installation of functional, meaningful and memorable public art elements, the establishment of key civic spaces, outdoor dining areas, additional streetscape planting and improved pedestrian comfort, access, signage and circulation.
Federation Park Toowoomba
Federation Park was adopted by the Toowoomba City Council as their Centenary of Federation project for the city. The site is located in Railway Street, Toowoomba directly opposite the heritage listed Toowoomba Railway Station and the emerging commercial precinct on the upper side of Railway Street. The park contained a number of heritage listed trees and constructed elements including the World War II bomb shelter and grand stairs leading to the railway station entry. Careful planning and coordination with state government agencies and Queensland Rail was required in ensuring the protection of these assets while working in a confined site.
Gerard Canavan designed the park and also worked with the Toowoomba Chamber of Commerce, Queensland Rail, Darling Downs Group Training Authority and other local businesses in the securing significant in-kind contributions for the park. Gerard was also Chair of the Public Art Advisory Group for the design and implementation of public art projects for the park funded by the Australian Federal Government. He provided construction supervision services for the project providing on-site assistance and training for long term unemployed workers participating in a Community Jobs Plan. The park includes, water features, new gardens, footpaths, viewing areas federally funded public art elements.
Durrah District Park, Diyar Al Muharraq Bahrain
This large Public Garden area has been designed to accommodate use for both residents and visitors. It has also been earmarked as the possible location of the first Botanic Gardens site for Bahrain and the Middle East. Key features include the crescent shaped lake that provides a backdrop for the central park plaza and performance space. At the centre of this space a tall sculptural element is proposed to create a gateway 'icon' for the Diyar Al Muharraq project with another similar complimentary sculptural element placed in the sea opposite to provide for a dramatic arrival.
The performance space is flexible with an informal grassed amphitheatre 'bowl' on one side and shade structures surrounding the north eastern circumference. The sunken amphitheatre space could also be utilised as a temporary stormwater detention area.
This district park also provides large open space for organised sports activities, shaded play areas, informal open space areas and parking for residents and visitors.
Gerard Canavan was project leader on this project, during his time with Dubai based landscape architecture firm Cracknell.
Dick Caplick Park, Eumundi
Details coming soon.
